Boliger

Udsigten består af 57 moderne rækkehuse fordelt på flere boligtyper – fra kompakte boliger på 59 m² til rummelige familieboliger på 114 m². Herunder kan du få et overblik over boligtyperne, se plantegninger og orientere dig i priserne.

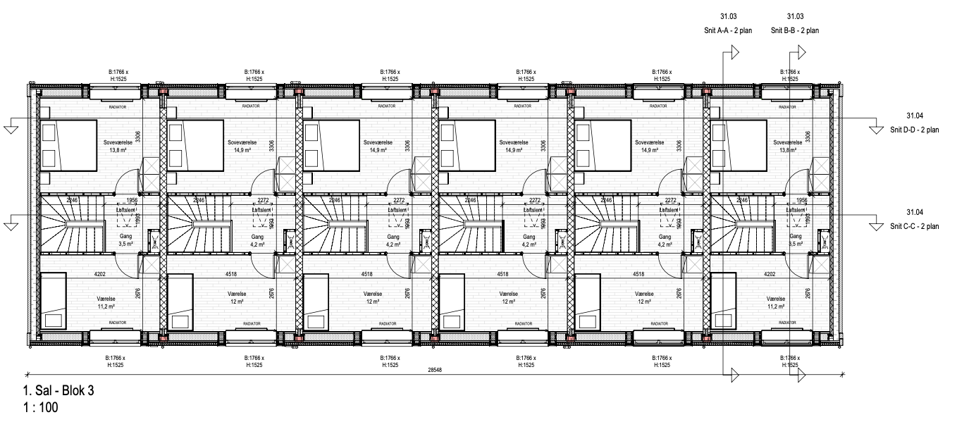
Boligtype A – 87 m², 1½ plan

En funktionel bolig med entré, åbent køkken-alrum og stue i stueplan samt værelser og bad på førstesal. Perfekt til par eller den lille familie.

Antal boliger
31

Boligtype A findes i
Blok 3, 4, 5, 11, 12 & 13 - Se oversigt nederst på siden

Pris
8.900 kr. + forbrug

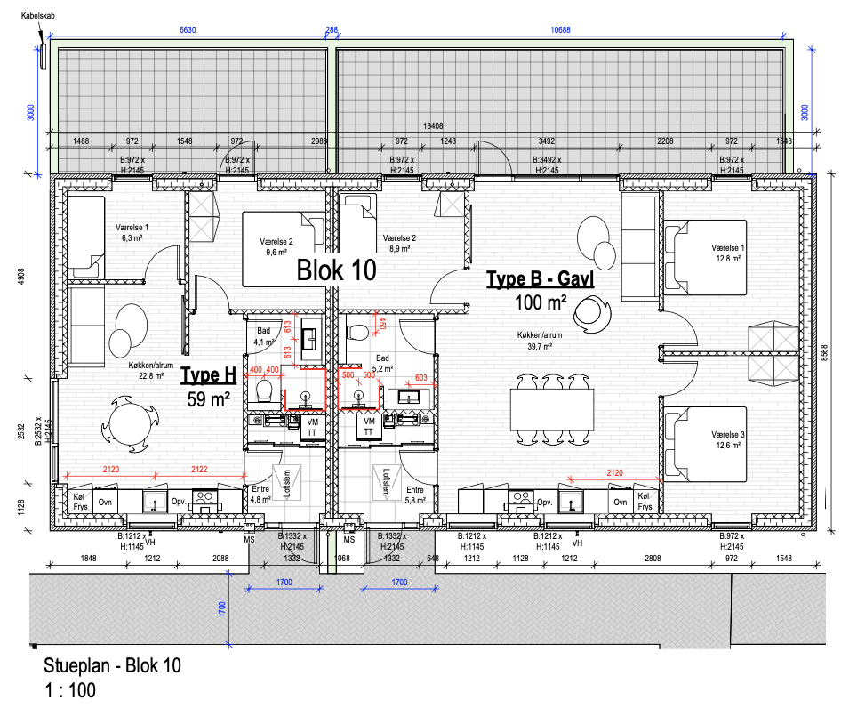
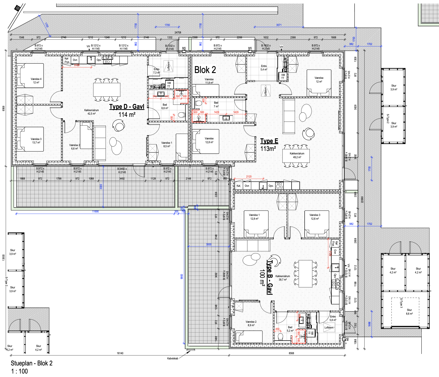
Boligtype B – 100 m², 1 plan

Velindrettet étplansbolig med god værelsesfordeling, rummeligt køkken-alrum og direkte adgang til terrasse og have. Ideel til familier i alle aldre.

Antal boliger
12

Boligtype B findes i
Blok 2, 6, 7, 8, 9, 10, 14, 15 & 16 - Se oversigt nederst på siden

Pris
11.200 kr. + forbrug

11.600 kr. + forbrug for boligtypen i blok 6, 15 og 16, da disse ligger i første række med udsigt.

Boligtype C – 100 m², 1 plan

Samme størrelse som type B, men placeret som dobbelthus med lidt anderledes planløsning og ekstra lysindfald. Begrænset antal enheder.

Antal boliger
3

Boligtype C findes i
Blok 1 - Se oversigt nederst på siden

Pris
11.200 kr. + forbrug

Boligtype D – 114 m², 1 plan

Ekstra rummelig bolig med fire værelser, stort opholdsrum og separat forældre- og børneafdeling. Til den pladskrævende familie.

Antal boliger
6

Boligtype D findes i
Blok 2, 6, 8, 14 & 15 - Se oversigt nederst på siden

Pris
12.800 kr. + forbrug.

13.300 kr. + forbrug for boligtypen i blok 6 og 15, da disse ligger i første række med udsigt.

Boligtype E – 114 m², 1 plan

Unik bolig med samme areal som type D, men anden placering og optimeret indretning. Findes kun som enkeltstående enhed.

Antal boliger
1

Boligtype E findes i
Blok 2 - Se oversigt nederst på siden

Pris
12.800 kr. + forbrug

Boligtype F – 112 m², 1 plan

Særudgave med god sammenhæng mellem fællesrum og private zoner. Ét eksemplar – til dig, der vil bo helt unikt.

Antal boliger
1

Boligtype F findes i
Blok 1 - Se oversigt nederst på siden

Pris
12.600 kr. + forbrug

Boligtype G – 59 m², 1 plan

Projektets mest kompakte bolig. Perfekt som seniorbolig, førstegangskøb eller som nem base i naturskønne omgivelser.

Antal boliger
1

Boligtype G findes i
Blok 14 - Se oversigt nederst på siden

Pris
7.300 kr. + forbrug

Boligtype H – 67 m², 1 plan

Kompakt og veldisponeret bolig med lys stue og åbent køkken. Ideel til én eller to personer med fokus på funktion og nærhed.

Antal boliger
1

Boligtype H findes i
Blok 10 - Se oversigt nederst på siden

Pris
7.900 kr. + forbrug

Boligtype I – 79 m², 1 plan

God mellemstørrelse med to værelser og åbent opholdsrum. Passer både til par og små familier, der ønsker overskuelig hverdag.

Antal boliger
1

Boligtype I findes i
Blok 7 - Se oversigt nederst på siden

Pris
8.500 kr. + forbrug

Interesseret i en bolig i udsigten?

Vi står klar til at fortælle mere om boligerne, området og dine muligheder. Kontakt os for yderligere information eller aftal en personlig fremvisning.